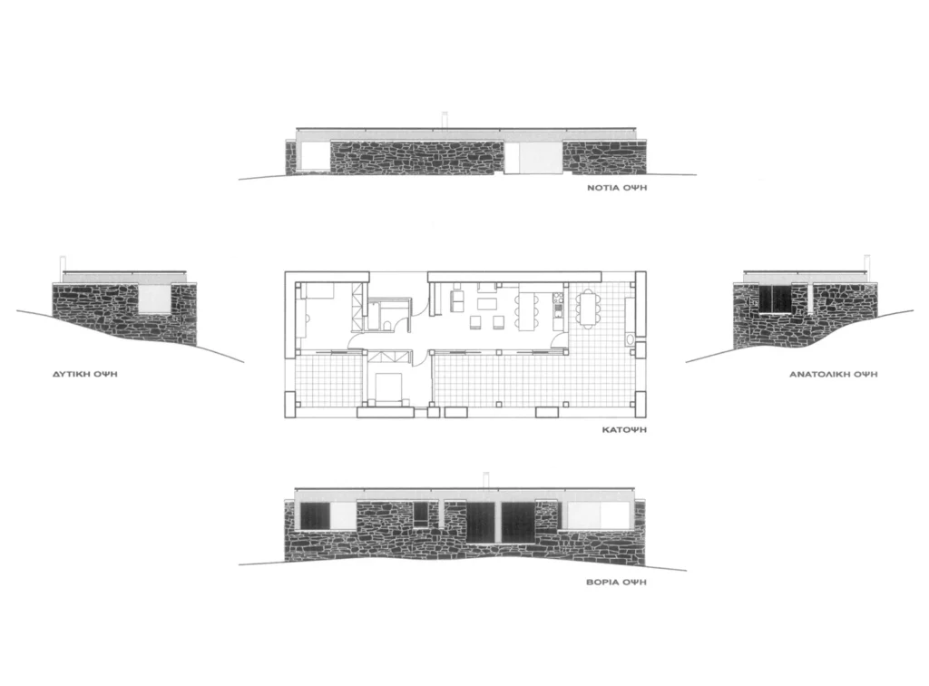
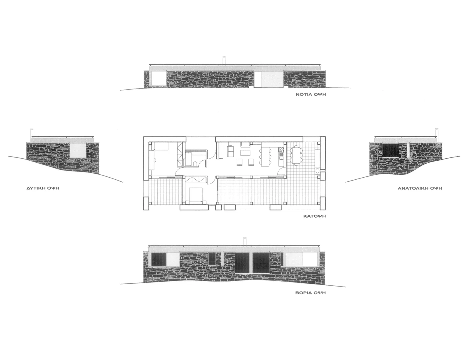
Σε αγροτεμάχιο 4000 τ.μ. μελετάται η ανέγερση κατοικίας διακοπών επιφάνειας 110 τ.μ. (ή 120 τ.μ.). Το ενδιαφέρον εστιάζεται στη δημιουργία μιάς μονολιθικής κατασκευής απο οπλισμένο σκυρόδεμα η οποία επενδύεται στην εξωτερική περίμετρο του κτηρίου με τοπική πέτρα. Η κατασκευή απο σκυρόδεμα υπακούει αυστηρά σε κάνναβο 3,6Χ3,6 μ. ή 4,00Χ4,00 μ. ανάλογα με τις ανάγκες της κατοικίας. Η μελέτη συμπυκνώνει μια πορεία αναζητήσεων στο θέμα της εξοχικής κατοικίας. Η πρόταση αποτελεί ένα ιδεότυπο κατοικίας με στανταρισμένα μεγέθη και απλή ορθολογική κατασκευή, και τοποθετεί τον εαυτό της μέσα στην προβληματική της «μετα-κωνσταντινιδικής εποχής».
Συνεργάτης: Ν. Κοτροζίνης



