Πρότυπος και Βιώσιμος Σχεδιασμός
Ζούμε σε μια εποχή όπου έχει γίνει συνείδηση ότι οι περιβαλλοντικές συνθήκες και η κοινωνική και πολιτιστική ζωή είναι στενά σχετισμένες και αλληλένδετες. Ένα βιώσιμο περιβάλλον προάγει την κοινωνική ζωή και είναι ευθύνη της αρχιτεκτονικής να οικοδομεί τέτοια βιώσιμα περιβάλλοντα, ιδιαίτερα δε είναι ευθύνη της αρχιτεκτονικής του δημόσιου χώρου. Η πρόταση για το “Νέο Πολυδύναμο Κοινωνικό Κέντρο του Δήμου Βόλου” είναι μια αρχιτεκτονική πρόταση που από τη μια δημιουργεί ένα κτήριο με χαρακτηριστικά βιώσιμης και βιοκλιματικής αρχιτεκτονικής από την άλλη επιχειρεί να προαγάγει τον πολιτισμό στην κοινωνική ζωή της πόλης, ιδιαίτερα για τους νεότερους δημότες της. Επίσης, με τον βιώσιμο σχεδιασμό του κτηρίου επιχειρείται η εξωστρέφεια της πόλης καθώς το “Πολυδύναμο Κέντρο” μπορεί να αποτελέσει ένα πόλο έλξης και για δραστηριότητες με ευρύτερη ακτινοβολία στην εθνική επικράτεια αλλά και διεθνώς.
Κιβωτός Πολιτισμού
Το κτήριο έχει σχεδιαστεί σαν μια κιβωτός που θα περιλαμβάνει και θα φιλοξενεί ανθρώπους, βιβλία, δραστηριότητες, έργα τέχνης γύρω από το βιβλίο και την ανάγνωση αλλά και τις νέες τεχνολογίες σε σχέση με την ανάγνωση, τη γραφή, την πολιτιστική διάδραση, την χειροτεχνία και την παραγωγή υλικών αντικειμένων, τις παραστατικές τέχνες αλλά και την παραγωγή ήχου και μουσικής, πρακτικών ιδιαίτερα αγαπητών στους νέους και τα κοινωνικά τους περιβάλλοντα και δίκτυα. Η ιδέα είναι να μπορεί να φιλοξενηθεί μια συνολική εμπειρία πολιτιστικής ζωής και ψυχαγωγίας για τη διάρκεια όλης της μέρας με παράλληλες μορφές δραστηριότητας.
Αναφορά στην Αστική Αρχιτεκτονική του Βόλου
Η συμπαγής μορφή του κτηρίου εξωτερικά θέλει να τονίσει το δημόσιο, εμβληματικό χαρακτήρα του. Εμπνέεται από την προπολεμική κυρίως βιομηχανική αρχιτεκτονική του Βόλου, τις σύμμεικτες κατασκευές από τούβλα και μεταλλικό σκελετό. Επίσης αν και συμπαγές το κτήριο είναι απολύτως πορώδες για την μεγιστοποίηση και βελτιστοποίηση του αερισμού, της διαμπερότητας, τη σκίασης και εν γένει της παθητικής βιοκλιματικής λειτουργίας του κτηρίου. Οι τούβλινες προσόψεις μειώνουν το περιβαλλοντικό αποτύπωμα και σε σχέση με την εκτεταμένη χρήση του ξύλου στο εσωτερικό του κτηρίου δημιουργείται ένα κλίμα οικειότητας των υλικών και των χώρων. Για τον εσωτερικό χώρο του κτηρίου η κύρια πρόθεση είναι να γίνεται αντιληπτός ως ένας ενιαίος χώρος τόσο οριζόντια όσο και κατά το ύψος του κτηρίου. Πρόθεση είναι η αύξηση της κοινωνικότητας, η αύξηση των διεπαφών και της επικοινωνίας μεταξύ των χρηστών του κτηρίου.
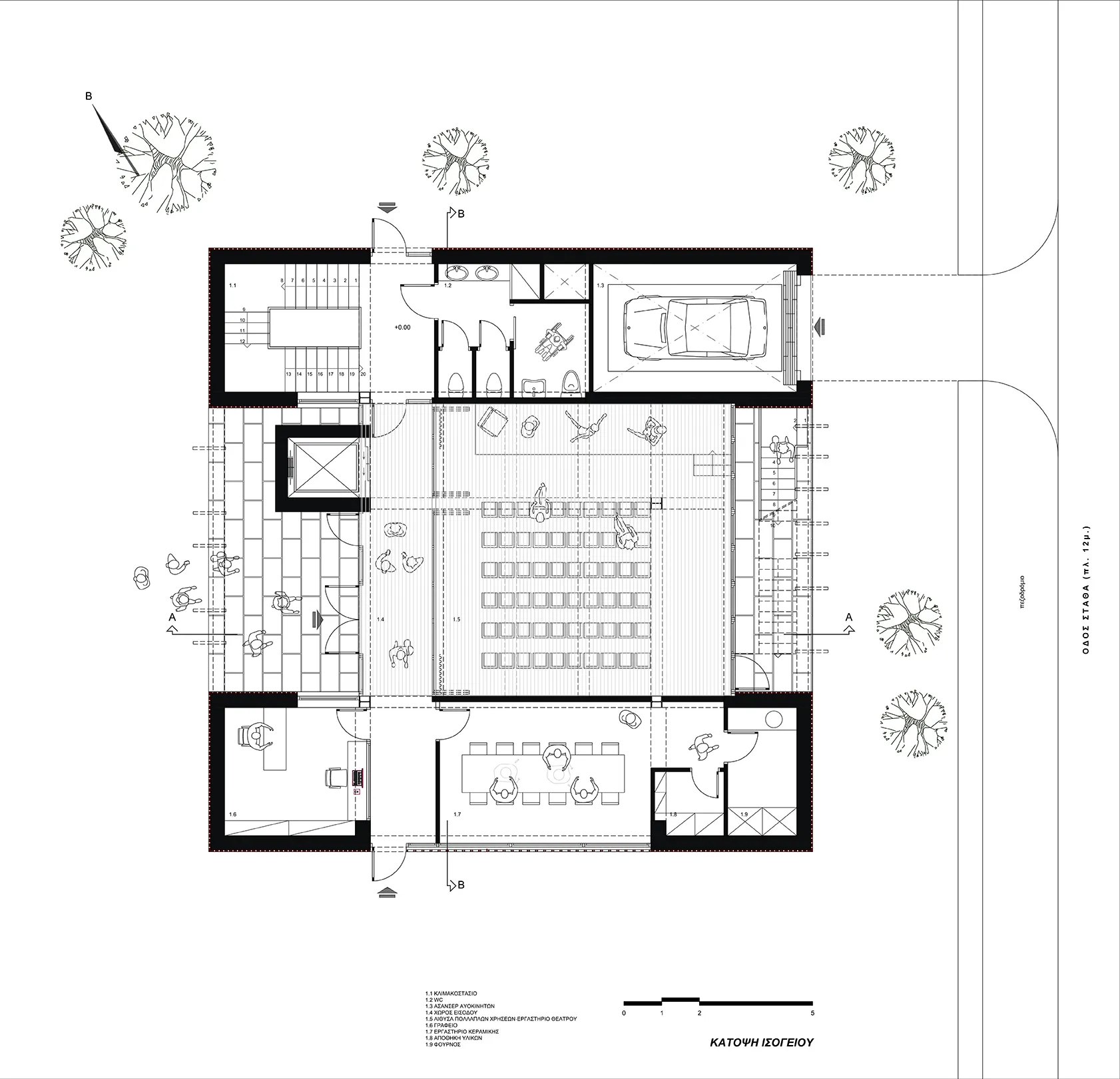
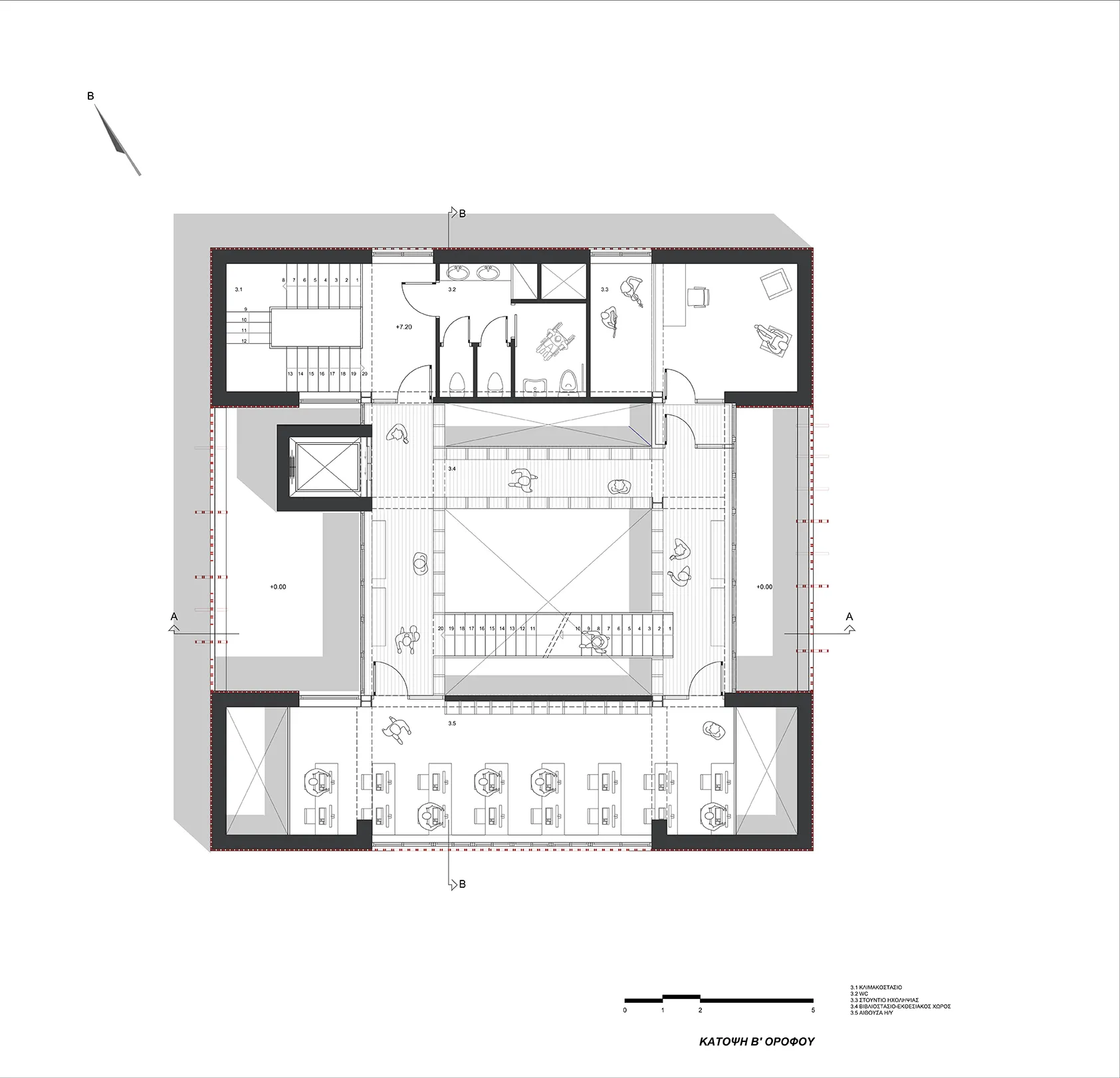
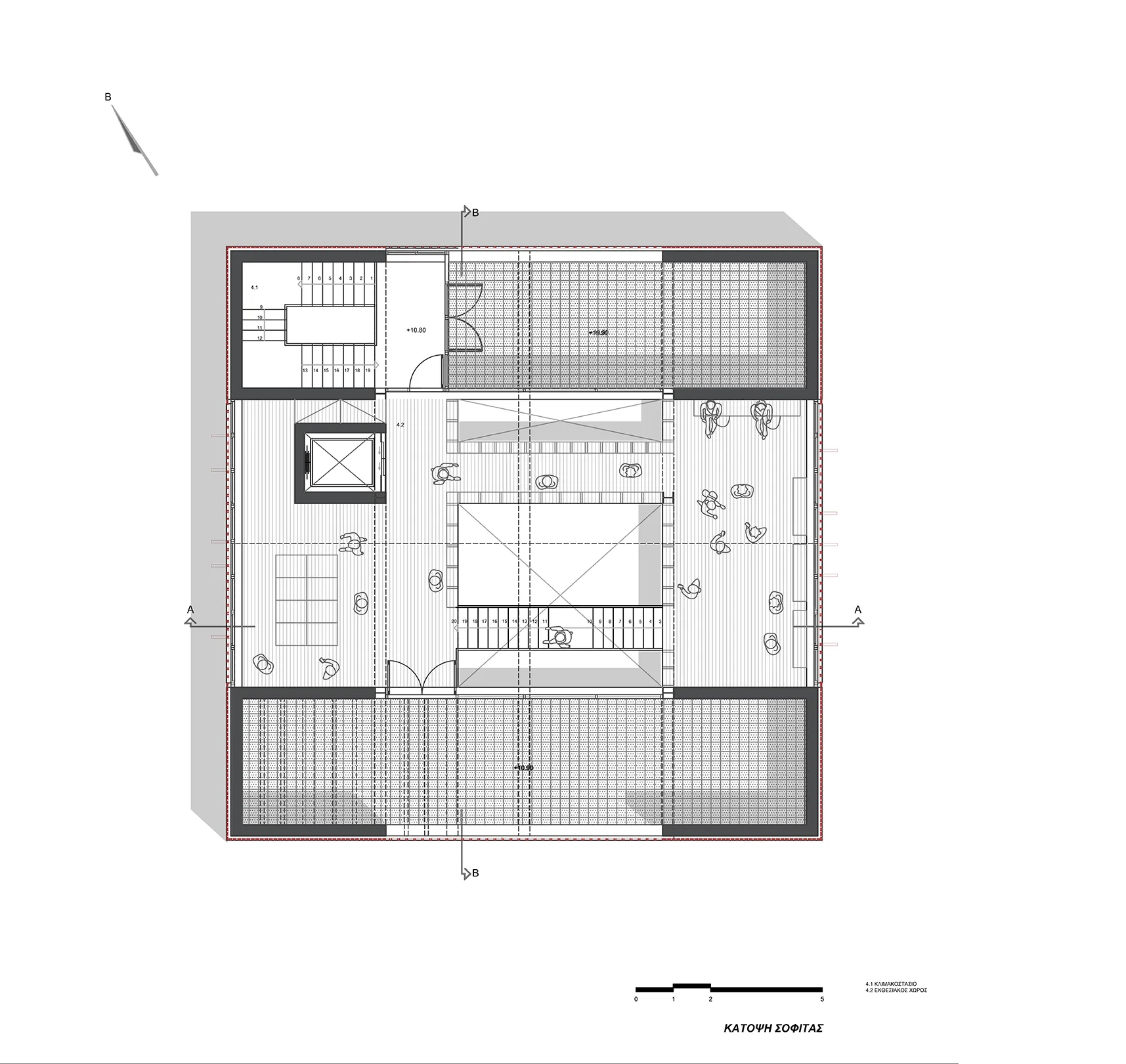
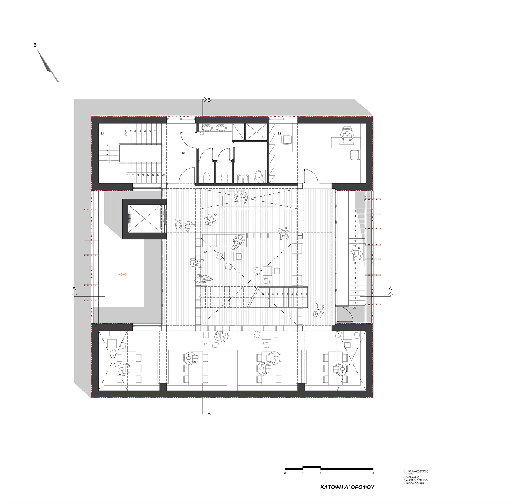
Πρόκειται για έναν κύβο με διαστάσεις δεκαέξι επί δεκαέξι μέτρα σε κάτοψη και περίπου ανάλογο ύψος. Η εσωτερική δομή του βασίζεται σε έναν τριμερισμό της κάτοψης σε ένα κεντρικό και δύο πλάγια κλίτη, στην αρχαία τυπολογία της βασιλικής όπως είναι για παράδειγμα ο εμβληματικός για τον Βόλο ναός του Αγίου Κωνσταντίνου, με αρχιτέκτονα τον Α. Ζάχο. Τα δύο πλάγια “κλίτη” φιλοξενούν κυρίως βοηθητικές χρήσεις (χώροι υγιεινής, οριζόντια και κατακόρυφη κίνηση, βιβλιοστάσια) ενώ το κεντρικό κλίτος είναι ένας ενιαίος και διαμπερής χώρος τόσο σε οριζόντιο όσο και στον κατακόρυφο άξονα. Εκεί γίνεται η πύκνωση των κοινών δραστηριοτήτων εντός του κτηρίου από την ανάγνωση ως την διεπαφή, τις συγκεντρώσεις του κοινού (ισόγειο) αλλά και την εκτόνωση της κοινόχρηστης δραστηριότητας ως το πατάρι και τα δώματα του κτηρίου.
Από κατασκευαστική άποψη, τα δύο πλάγια κλίτη θα είναι κατασκευασμένα από οπλισμένο σκυρόδεμα ενώ το κεντρικό κλίτος θα είναι μεταλλική κατασκευή που θα γεφυρώνει τα ανοίγματα μεταξύ των δύο πλάγιων πτερύγων. Πρόκειται για μια τυπολογία τριμερισμού με σύμμεικτη κατασκευή βασισμένη στις βασικές γεωμετρίες του προκύπτουν από τον τριμερισμό του τετραγώνου.
Ολόκληρη η διαμόρφωση του κεντρικού χώρου γίνεται με το συνδυασμό μεταλλικών φερόντων στοιχείων (δοκάρια, κολόνες) και ξύλινων στοιχείων (δάπεδα, στηθαία, σκάλες, βιβλιοστάσια, έπιπλα). Η ιδέα μιας κιβωτού επανέρχεται στα υλικά καθώς η αίσθηση για τον/την χρήστη του χώρου θα θέλαμε να είναι η αίσθηση ότι βρίσκεσαι εντός ενός μεγάλου επίπλου, εντός ενός ξύλινου κουτιού.
Διαπερατό Κεραμικό Κέλυφος
Το εξωτερικό της δομής του κτηρίου είναι συνολικά ένα κεραμικό κέλυφος που τυλίγει την δομή και το εσωτερικό του εξασφαλίζοντας διαμπερότητα και δροσισμό με την πορώδη δομή του (κλωστρά, φεγγίτες και ανοίγματα). Οι όψεις του κτηρίου επικαλύπτονται συνολικά με κεραμικά στοιχεία, δηλαδή συμπαγή τούβλα και κεραμικά κλωστρά. Ο σχεδιασμός του κτιριακού περιβλήματος υπακούει εν γένει στις αρχές του βιοκλιματικού σχεδιασμού, σε σχέση με τον διαμπερή αερισμό αλλά και την ηλιοπροστασία των εσωτερικών χώρων. Το τούβλινο κτήριο είναι μια πρόταση εξ ίσου πολύ παλιά αλλά και πολύ επίκαιρη στις συνθήκες περιβαλλοντικής κρίσης που βιώνουμε όλοι, καθώς ως υλικό έχει μικρό περιβαλλοντικό αποτύπωμα και δημιουργεί καλές συνθήκες μικροκλίματος τόσο για το κτήριο όσο και για το πάρκο-πλατεία.
Στέγαση _ Δώμα
Η δίρριχτη στέγη, με αναφορά στις επικλινείς στέγες της πηλιορείτικες ναοδομίας υπηρετεί και την τοποθέτηση φωτοβολταϊκών πανέλων, στην μεσημβρινή πλευρά της στέγης και τονίζει τον δημόσιο, εμβληματικό χαρακτήρα του κτηρίου ως τοπόσημο και σύμβολο της κοινότητας των υποκειμένων που φιλοξενεί. Στα δώματα, εκατέρωθεν της στέγης, στο μεν βορινό θα τοποθετηθούν οι κεντρικές μονάδες κλιματισμού και οι ηλιακοί συλλέκτες ενώ στο νότιο δώμα, σε προέκταση του εκθεσιακού χώρου της “σοφίτας” δημιουργείται περιορισμένος υπαίθριος εκθεσιακός χώρος.
Η Διάρθρωση των Χώρων και των Χρήσεων
Στο Ισόγειο του κτηρίου θα στεγαστούν εργαστήρια δημιουργικής απασχόλησης, όπως Θεάτρου και Κεραμικής (208 τ.μ.). Στον Α’ όροφο θα στεγαστεί Παιδική και Εφηβική Βιβλιοθήκη και Αναγνωστήριο (208 τ.μ.). Στον Β’ όροφο θα στεγαστεί Εργαστήριο Ηλεκτρονικών Υπολογιστών, χώρος καθιστικού με εσωτερικό αίθριο και Στούντιο Ηχοληψίας (137,55 τ.μ.). Στη Σοφίτα με το χώρο αιθρίου θα στεγαστεί χώρος μικρών εκθέσεων (49,70 τ.μ.). Στο υπόγειο θα υπάρχει χώρος στάθμευσης αυτοκινήτων (288,40τ.μ.).
Οι λειτουργικές αρχές σχεδιασμού προβλέπουν μεταβλητή χρήση του χώρου, όπου οι επιμέρους ενότητες είτε λειτουργούν χωριστά είτε ενοποιούνται σε κοινή λειτουργία μεταξύ τους, με διακριτή και κεντροθετημένη τη λειτουργία της βιβλιοθήκης. Η γεωμετρική φόρμα του κτηρίου είναι απλή και ευανάγνωστη για να τονίζεται τόσο ο συμβολικός του χαρακτήρας μέσα στην πόλη, όσο και για να έχει ένα σαφή διαπαιδαγωγικό ρόλο για τους πολίτες του Βόλου αλλά και για τα παιδιά και τους νέους που θα το ζουν, από την άποψη των υλικών που χρησιμοποιούνται και την εν γένει βιώσιμη (sustainable) αρχιτεκτονική του.
Ο ρόλος της βιβλιοθήκης, τόσο λειτουργικά όσο και συμβολικά είναι κυρίαρχος στην διάρθρωση και την γενική εικόνα του κτηρίου. Η μορφολογία του προσιδιάζει προς την ατμόσφαιρα ενός μονολιθικού αλλά ταυτόχρονα και διαμπερούς κτηρίου μέσα στην υπό διαμόρφωση πλατεία-πάρκο. Σκοπός είναι να δομηθεί ένα είδος ευτοπίας, με ανοικτή πρόσβαση, μέσα στον αστικό ιστό της πόλης. Για το λόγο αυτό, ιδιαίτερη σημασία πρέπει να δοθεί και στον σχεδιασμό του υπαίθριου χώρου της πλατείας και να αξιοποιηθούν τα υπάρχοντα φυσικά στοιχεία, (τα μεγάλα –ιστορικά για την περιοχή– δέντρα) και να διαμορφωθεί τελικά ο ενιαίος υπαίθριος χώρος σαν μικρό αστικό πάρκο.
Φυσικός Φωτισμός και Αερισμός
Για τον εσωτερικό χώρο του κτηρίου εν γένει λόγω της χρήσης της βιβλιοθήκης προκρίνεται ο έμμεσος φωτισμός με αποφυγή της ηλιακής ακτινοβολίας. Έτσι προκρίνεται φωτισμός καθ΄ ύψος από φεγγίτες στη στέγη- σοφίτα. Τα υαλοστάσια στη βόρεια και τη νότια πλευρά παίρνουν έμμεσο φωτισμό με το διαπερατό κέλυφος με κλωστρά. Οι πλάγιες όψεις (νότια και βόρεια) δίνουν ελεγχόμενο φυσικό φωτισμό και αερισμό με ηλιοπροστασία από τις διαμπερείς επιφάνειες των κλωστρών.
Περιβαλλοντική Ενσωμάτωση
Κυρίαρχη πρόθεση είναι να προκύψει μια πρότυπη, ολοκληρωμένη αρχιτεκτονική πρόταση με παραδειγματικό χαρακτήρα περιβαλλοντικής ενσωμάτωσης και υπερτοπική ακτινοβολία για την προσέλκυση των χρηστών του «Πολυδύναμου Κοινωνικού Κέντρου» αλλά και την προαγωγή της πολιτιστικής ζωής των δημοτών του Βόλου.
ΟΜΑΔΑ ΜΕΛΕΤΗΣ:
Αρχιτεκτονική μελέτη
ΖΗΣΗΣ ΚΟΤΙΩΝΗΣ αρχιτέκτων μηχανικός, καθηγητής ΤΑΜ Π.Θ.
ΚΩΣΤΑΣ ΣΑΡΑΝΤΗΣ αρχιτέκτων μηχανικός MSc
Συνεργάτης:
ΕΥΘΥΜΙΑ ΔΗΜΗΤΡΑΚΟΠΟΥΛΟΥ αρχιτέκτων μηχανικός MSc
Υπεύθυνη Μακέτας: Μαρία Λιάπη, φοιτήτρια αρχιτεκτονικής
Στατική μελέτη
ΝΙΚΟΣ ΧΑΤΖΗΝΙΚΟΛΑΟΥ πολιτικός μηχανικός
Ηλεκτρομηχανολογική μελέτη
ΔΗΜΗΤΡΗΣ ΖΗΜΕΡΗΣ ηλεκτρολόγος μηχανικός MSc
Συνεργάτης:
ΘΕΟΔΩΡΑ ΠΑΝΤΑΖΗ μηχανολόγος μηχανικός MSc



















