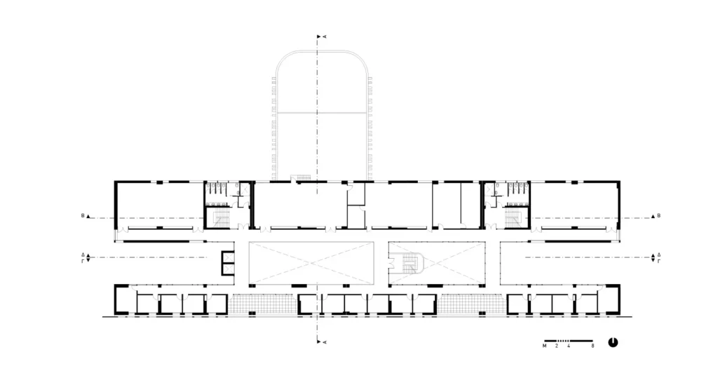
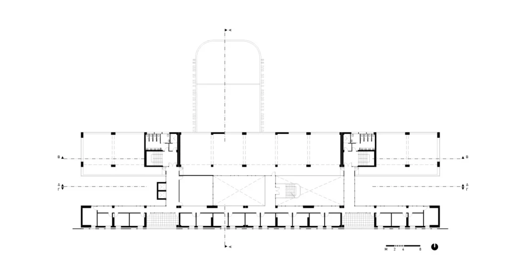
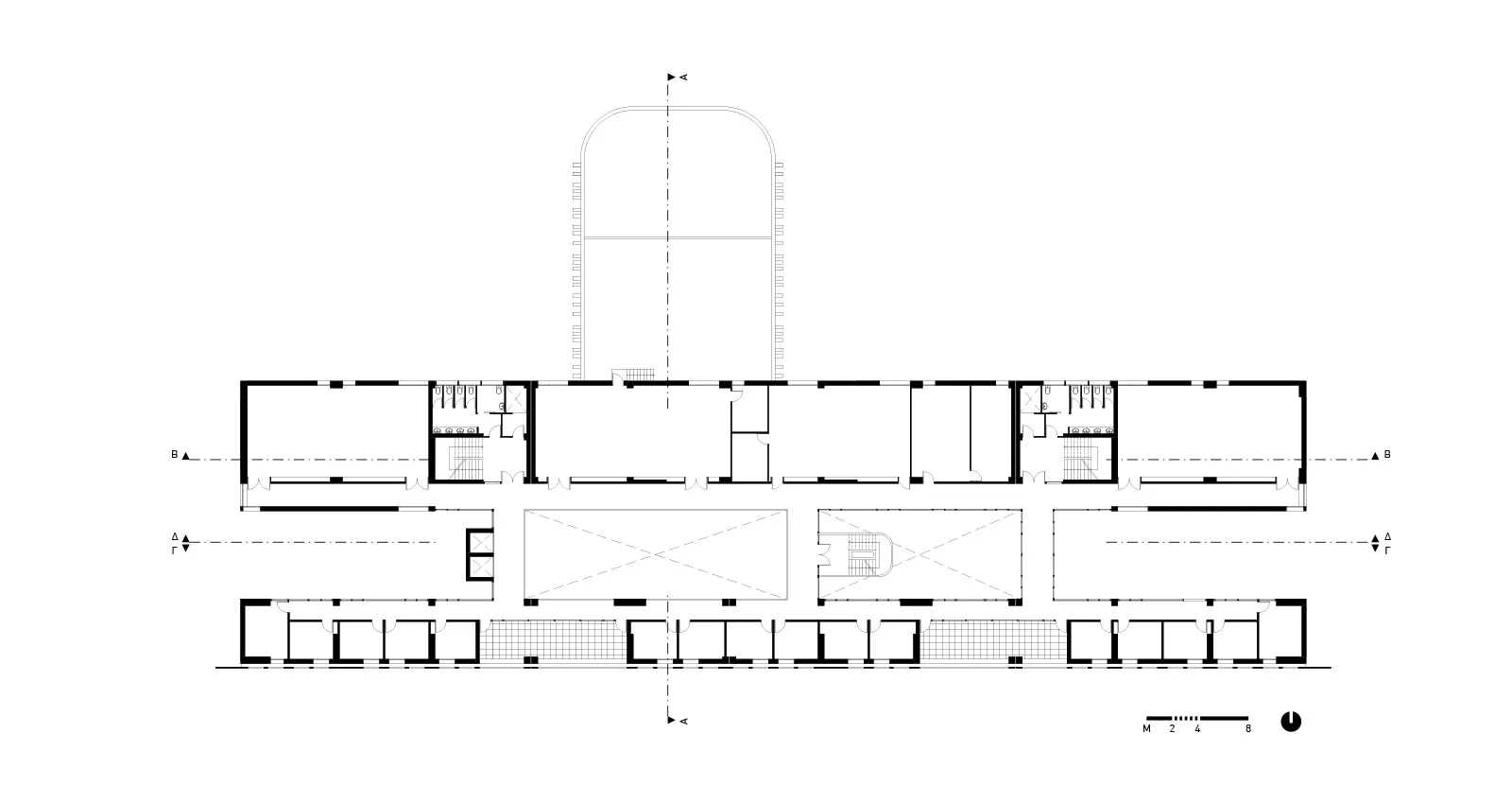
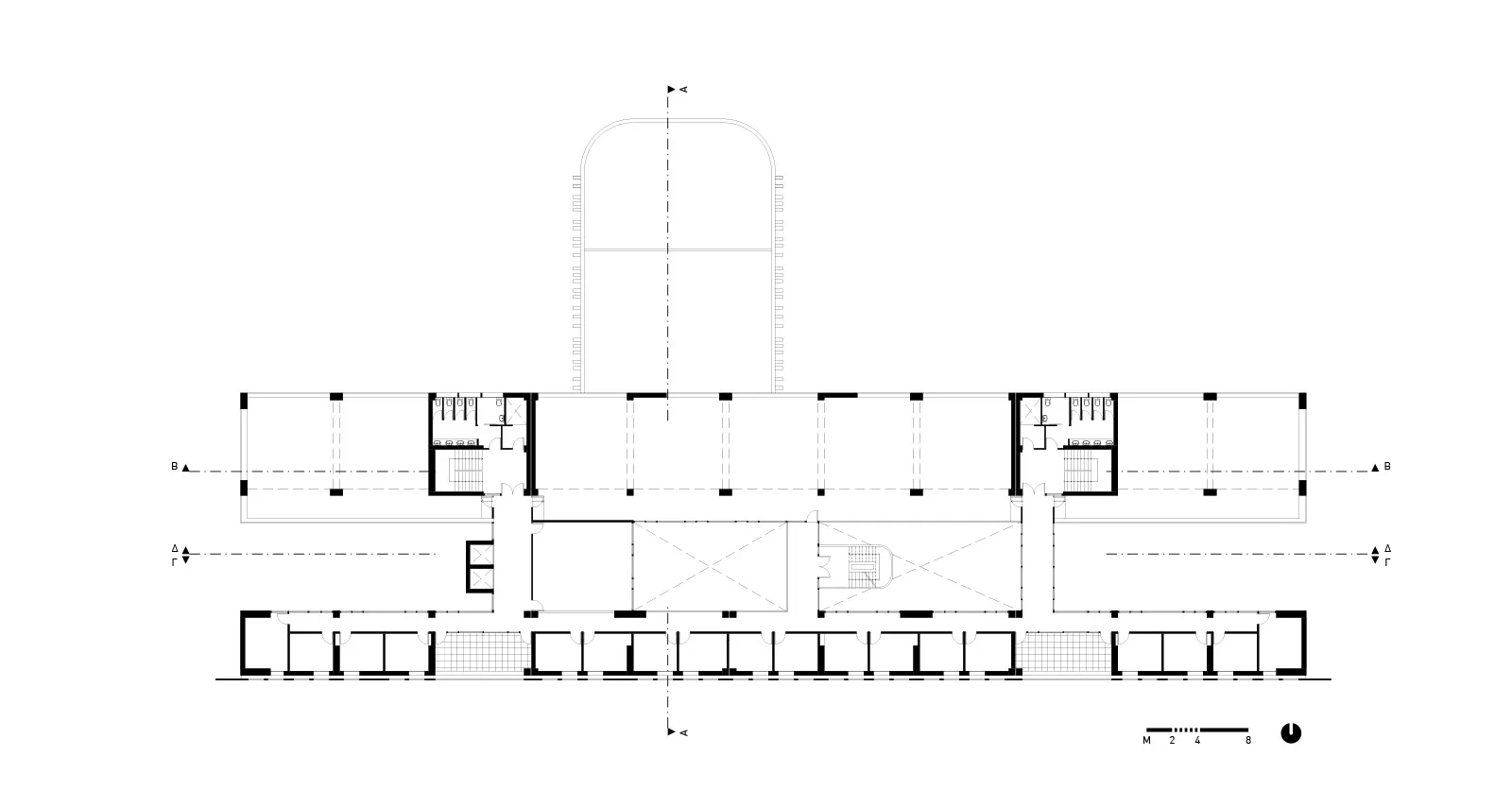
Σε οικόπεδο επιφάνειας 4.918 τμ στο campus της Πολυτεχνικής Σχολής στην πόλη του Βόλου, πρόκειται να ανεγερθεί κτήριο επιφάνειας 3.930τμ για να στεγάσει το Τμήμα Μηχανικών Ηλεκτρονικών Υπολογιστών, Τηλεπικοινωνιών και Δικτύων. Το κτήριο επιμερίζεται σε δύο όγκους επιμήκεις, διατεταγμένους παράλληλα και με προσανατολισμό προς τη μεσημβρία. Ο επιμήκης όγκος βόρεια φιλοξενεί τις εκπαιδευτικές χρήσεις, ενώ ο αντίστοιχος στη μεσημβρία φιλοξενεί τους γραφειακούς χώρους του κτηρίου. Στο ενδιάμεσο τοποθετείται ψηλός κοινόχρηστος χώρος με τη λογική ημιυπαίθριας διαμόρφωσης, στην οποία αναφέρεται θεατρικά το σύνολο των λειτουργιών και της ζωής του κτηρίου.
Στην εγκάρσια τομή του κτηρίου αναδεικνύονται η βιοκλιματική του λειτουργία, ο φυσικός φωτισμός, ο ηλιασμός, η φυσική θέρμανση και ο δροσισμός με τον τρόπο που επιτυγχάνεται με τις ροές του φυσικού αέρα, οριζόντια και κατακόρυφα. Στο ισόγειο του κτηρίου τοποθετούνται οι χρήσεις ευρέως κοινού (τρία αμφιθέατρα, γραμματεία, φουαγιέ). Οι κοινόχρηστοι χώροι, pitolis, στον νοτιά και φουαγιέ με φύτευση, οργανώνουν την κοινή ζωή του κτηρίου.
Η κατασκευή είναι συμβατική από οπλισμένο σκυρόδεμα και στοιχεία πληρώσεως, ενώ το κεντρικό τμήμα είναι μεταλλική κατασκευή. Προκατασκευασμένα πανέλα από μπετόν ντύνουν τη μεσημβρινή όψη για ηλιοπροστασία της επιφάνειας της όψης.
Η νότια όψη του κτηρίου, είναι το μέτωπο θέασης του κτηρίου από την πόλη. Η όψη μορφοποιείται με τη λογική ψηφίων κενού στο πλήρες της όψης. Η συμβολική αυτή αναφορά στον ψηφιακό κόσμο ανταποκρίνεται στη συνολικότερη εννόηση του προγράμματος του κτηρίου. Το κέλυφος/κτήριο είναι ένα “hardware”, το περιεχόμενο του οποίου είναι το ίδιο το “software” της πανεπιστημιακής ζωής.
Τίτλος και θέση έργου/μελέτης:
Νέo Κτήριο Τμ. Μηχ. Ηλεκτρονικών Υπολογιστών Τηλεπικοινωνιών και Δικτύων, Πανεπιστημίου Θεσσαλίας, Βόλος, Μαγνησία
Αρχιτέκτονες:
Ζήσης Κοτιώνης, καθ. Τμ. Αρχιτεκτόνων Π.Θ.
Βάσω Τροβά, αν. καθ. Τμ. Αρχιτεκτόνων Π.Θ.
Φοίβη Γιαννίση, επικ, καθ. Τμ. Αρχιτεκτόνων Π.Θ.
Συνεργάτες αρχιτέκτονες :
Αικατερίνη Κρίτου, αρχιτέκτων Π.Θ.
Βάσια Λύρη, αρχιτέκτων Π.Θ.
Νίκος Πλατσάς, αρχιτέκτων Π.Θ.
Στατική μελέτη:
Ευριπίδης Μυστακίδης, καθ. Τμ. Πολ. Μηχ. Π.Θ.
Ολυμπία Παναγούλη, επικ. καθ. Τμ. Πολ. Μηχ. Π.Θ.
Εδαφοτεχνική μελέτη:
Αιμίλιος Κωμοδρόμος, καθ. Τμ. Πολ. Μηχ. Π.Θ.
Συνεργάτης: Μαρία Παπαδοπούλου, Δρ. Πολ. Μηχ. Π.Θ.
Ηλεκτρομηχανολογική μελέτη:
Δημήτρης Ζημέρης, Ηλ.Μηχ. Μηχ.
Μελέτη Γεωθερμίας:
Νίκος Ανδρίτσος, επικ. καθ. Τμ. Μηχ. Μηχ. Π.Θ.
Ενεργειακή μελέτη:
Αριστείδης Τσαγκρασούλης, επικ, καθ. Τμ. Αρχιτεκτόνων Π.Θ.
Τρισδιάστατες αναπαραστάσεις:
Γιώργος Ρυμενίδης, αρχιτέκτων Π.Θ.
Μιχάλης Σοφτάς, αρχιτέκτων Π.Θ.
Ιδιοκτήτης: Πανεπιστήμιο Θεσσαλίας
Επιφάνεια οικοπέδου: 4918τμ
Συνολική επιφάνεια: 3930τμ
Χρόνος μελέτης: 2010–2011
























