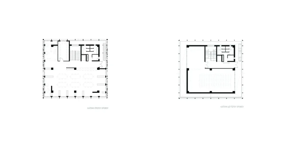
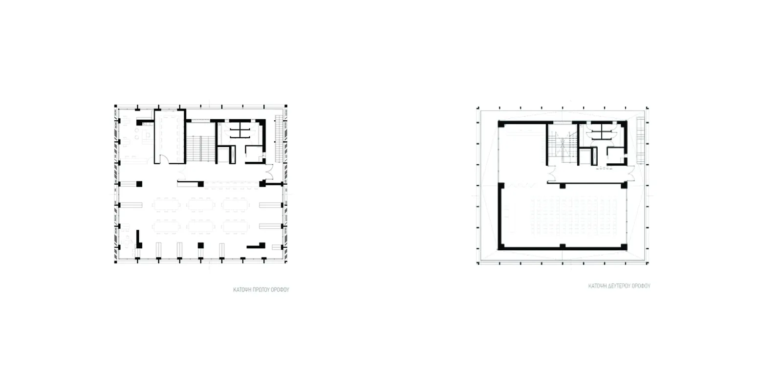
Σε οικόπεδο 1000τ.μ. στις παρυφές του κέντρου του Βόλου (πλ. 150.000) ένα νέο κτήριο 1100τ.μ. θα φιλοξενήσει το «Στέκι του Παιδιού» στο ισόγειο και Δημοτική Βιβλιοθήκη για νέους στον πρώτο όροφο. Στον δεύτερο όροφο μια πολυδύναμη αίθουσα θα προσφέρεται στις δημόσιες δραστηριότητες των πολιτών.
ΑΝΟΙΚΤΟ ΠΡΟΓΡΑΜΜΑ/ ΑΝΟΙΚΤΗ ΚΑΤΟΨΗ
Ένα μπετονένιο, κυβικό οικοδόμημα τοποθετείται έκκεντρα στο οικόπεδο, για να αφήνει ελεύθερο υπαίθριο χώρο για την υπαίθρια δραστηριότητα του κέντρου, ανοιχτή σαν πλατεία προς την πόλη. Ο κτηριακός τύπος ευνοεί την επανάληψη μιας ανοικτής κάτοψης τρείς φορές καθ ύψος. Εγκυβωτίζεται εξωτερικά σε σε σιδερένια πλαίσια στις τέσσερεις πλευρές, έξω από τον κλειστό κύβο.
ΒΙΟΚΛΙΜΑΤΙΚΟΣ ΚΥΒΟΣ
Τα σιδερένια πλαίσια που περιτυλίγουν τον οικοδομικό κύβο, έχουν ένα προφανή στόχο: Τον έλεγχο του ηλιακού φωτός, της σκιάς και του αέρα και τις εν γένει κλιματικής συνθήκης του έξω και του μέσα. Η πλαισίωση του οικοδομήματος επαναμορφοποιεί το όριο παράγοντας ενδιάμεσους χώρους φωτός και σκιάς, υπαίθριου και κλειστού χώρου. Αναρρηχητικά θα καλύψουν τις επιφάνειες που δημιουργεί ο σκελετός με ξύλινες περσίδες/ μαδέρια, που ανεβαίνουν στο κτήριο σαν σκαλωσιά.
ΕΞΩΤΕΡΙΚΗ ΕΓΚΑΤΑΣΤΑΣΗ “ΒΙΒΛΙΟΘΗΚΗΣ”
Μια εγκατάσταση μικρών ανοξείδωτων πανέλων προσαρμόζεται στις ξύλινες περσίδες, στο επίπεδο του πρώτου ορόφου όπου είναι εσωτερικά η βιβλιοθήκη. Έτσι, ελέγχεται το εισερχόμενο φως. Ταυτόχρονα στην εξωτερική εικόνα του κτηρίου «διαβάζεται» η σκαλωσιά σαν βιβλιοθήκη, κάνοντας μια σημειογραφική αναφορά προσέλκυσης στην εσωτερική ζωή του κτηρίου. (σε συνεργασία με τον εικαστικό Α. Ψυχούλη).
Συνεργάτες: Βάσια Λύρη, Κωνσταντίνος Σαράντης
Ενεργειακός και βιοκλιματικός σχεδιασμός: Άρης Τσαγκρασούλης
Εικαστική Μελέτη: Αλέξανδρος Ψυχούλης
Στατική Μελέτη: Νίκος Χατζηνικολάου






