Μετάβαση στο κύριο περιεχόμενο
Μετάβαση στο υποσέλιδο
ΑΡΧΙΚΗ
ΒΙΟΓΡΑΦΙΚΟ
WORKS
Αρχιτεκτονική
Καλλιτεχνικά έργα
Βιβλία και κείμενα
Βιβλία
Κείμενα
Aντικείμενα / design
ΔΡΑΣΕΙΣ
ΕΠΙΚΟΙΝΩΝΙΑ
en
gr
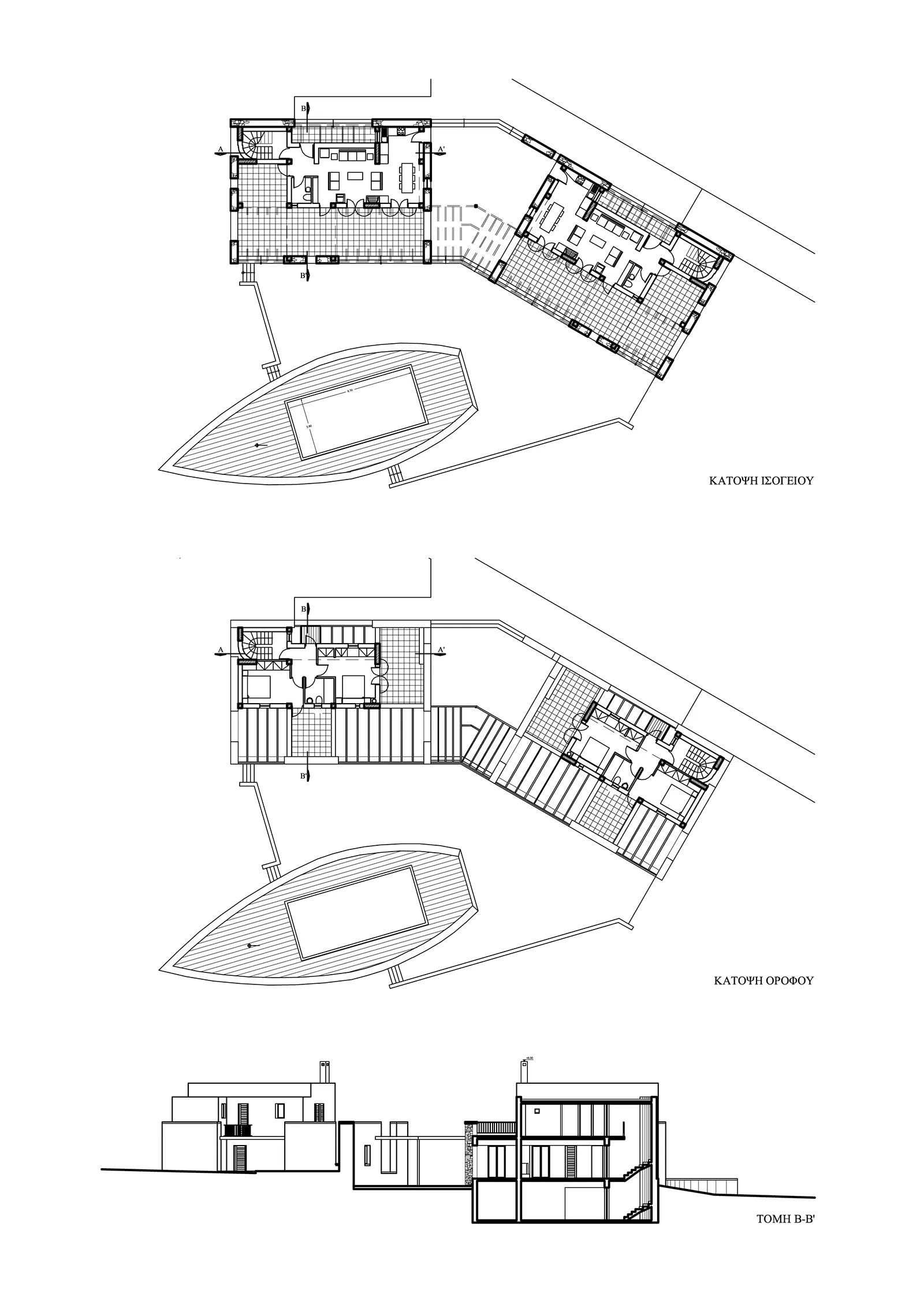
ΔΥΟ ΚΑΤΟΙΚΙΕΣ ΣΤΗ ΜΥΚΟΝΟ
Συνεργάτης: Ν. Κοτροζίνης