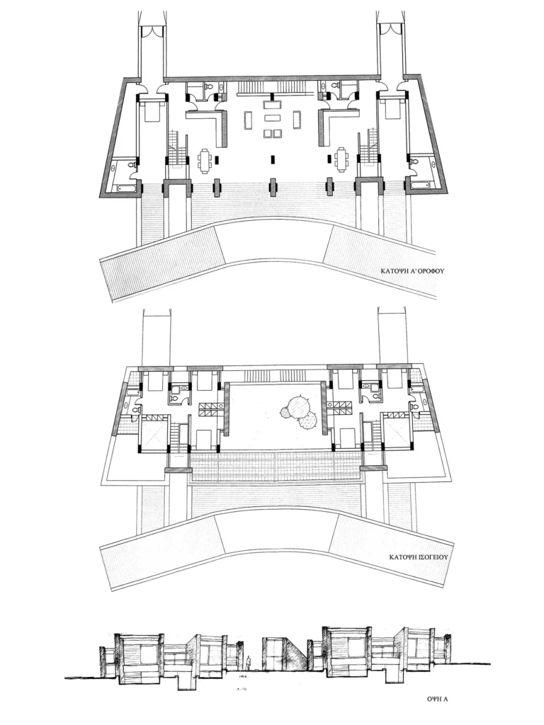
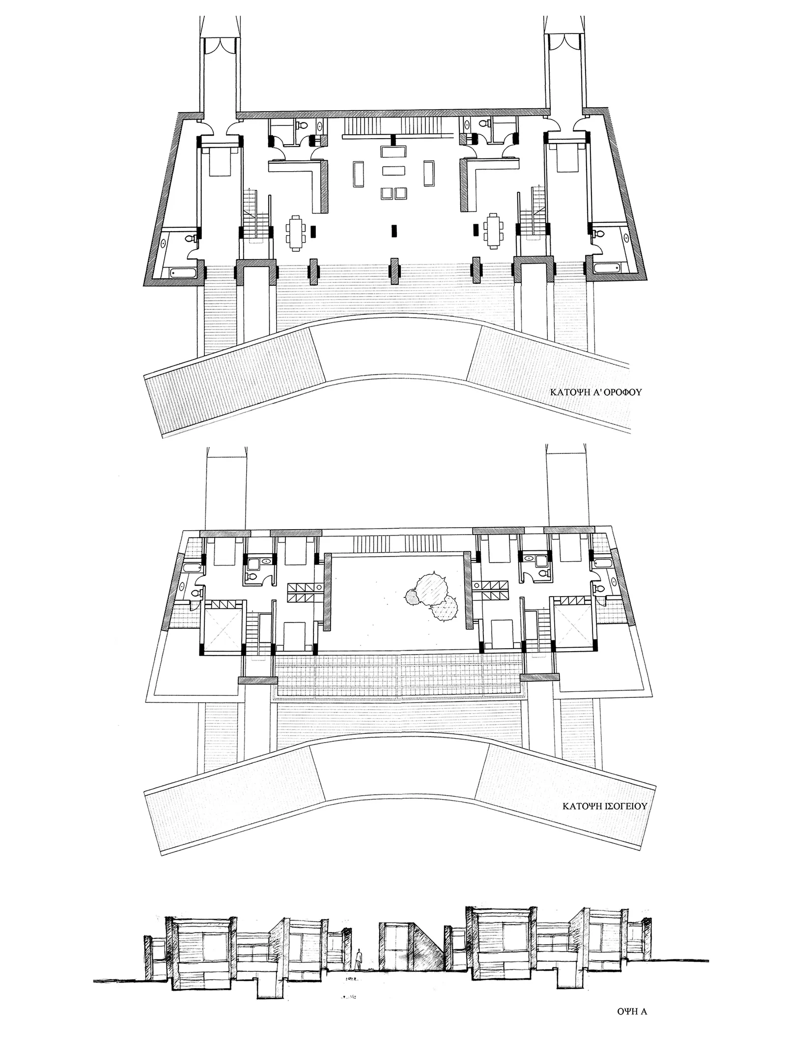
Σε ημιορεινή έκταση 33 στρεμμάτων εντάσσονται δυο κατοικίες σε συνέχεια, με τη μορφή μικρού συγκροτήματος 120 τ.μ. η κάθε μια και μια ακόμη ξεχωριστή κατοικία 180 τ.μ. Εισάγεται σύστημα κατασκευής με παράλληλους λιθόκτιστους τοίχους που παραλαμβάνουν μονόριχτες ξύλινες στέγες ενω μέσα σε αυτά τα σχηματιζόμενα κελύφη διαμεσολαβεί ο κύριος όγκος των κτηρίων -πλάκες και κολόνες- απο οπλισμένο σκυρόδεμα. Στις κατασκευές εντάσσονται δύο πισίνες με μεταβλητά περιβάλλοντα κλειστού ή ανοικτού – υπαίθριου χώρου, τα οποία διαχειρίζονται το ειδικό κλίμα της περιοχής με αρκετά βαρείς χειμώνες και σχετικά δροσερά καλοκαίρια. Η διαχείριση χώρων που μπορεί να είναι ανοικτοί ή κλειστοί και να ενοποιούν τις λειτουργίες χωριστών σπιτιών της ίδιας όμως οικογένειας αποτέλεσε το κύριο σχεδιασμικό μέλημα.
Συνεργάτες: A. Παπαγεωργίου, Ν. Κοτροζίνης


