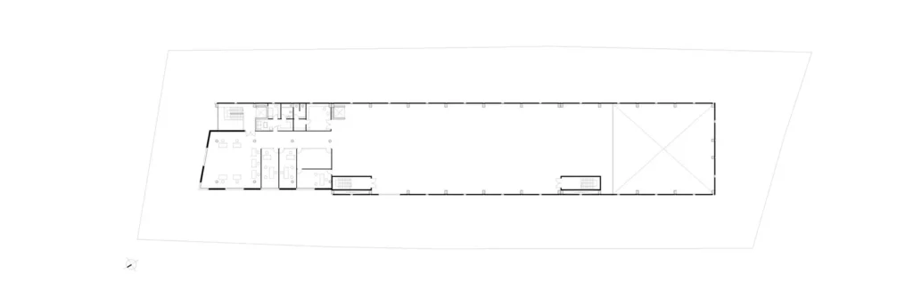
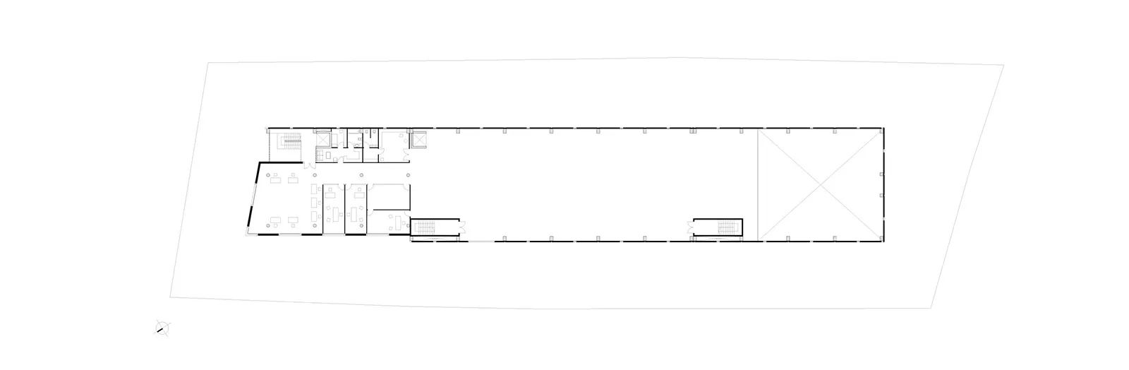
Σε μια περιοχή με άνιση και εντατική οικοδόμηση, στις παρυφές της Αττικής Οδού, στο Κορωπί, έχει οικοδομηθεί νέο βιομηχανικό κτήριο για τη στέγαση εκδοτικής επιχείρησης. Το κτήριο, συνολικής επιφάνειας 4.035 τ.μ. είναι προκατασκευασμένο με φέροντα προεντεταμένα στοιχεία, ανοίγματος 17μ., και τοιχία πληρώσεως από οπλισμένο σκυρόδεμα (3,20 x 7,00 μ). Το ενιαίο κτηριακό κέλυφος φιλοξενεί στο μεν προς τον δρόμο τμήμα του τους γραφειακούς χώρους, στο δε υπόλοιπο τους χώρους βιομηχανικής χρήσης. Το κτήριο-αντικείμενο εκλαμβάνεται ως μεγαλιθική δομή. Το χυτό μπετόν, η τεχνητή αυτή πέτρα, μορφοποείται στα καλούπια της προκατασκευής με την λογική ενός μεγαλιθικού τείχους που τυλίγει το κτήριο καταργώντας την τυπική κλίμακα των ορόφων. Ένθετα στη μεγαλιθική δομή διασπείρονται ομότροπα τα ανοίγματα του κτηρίου, για τον διάχυτο ηλιασμό και αερισμό των χώρων εργασίας.
Το «θέμα» της μεγαλιθικής δομής, που δίνει στο κέλυφος του κτηρίου την μορφή ενός διάτρητου τείχους επαναλαμβάνεται με διαφορετικό τρόπο στο μέρος του κελύφους που στεγάζει τους γραφειακούς χώρους. Εκεί, το pattern του διάτρητου τείχους εκφράζεται με την τοποθέτηση εμφανών θερμομονωτικών «λίθων» στα πανέλα της όψης.
Γενικά η αρχιτεκτονική διαχείριση του βιομηχανικού κτηρίου, που συνήθως αντιμετωπίζεται με συμβατικές κατασκευές και επιλύσεις, έχει στόχο εδω να βελτιστοποιήσει την ενεργειακή απόδοση του κελύφους. Επίσης, προσδίδει στο κτήριο -που κυρίως γίνεται αντιληπτό στο αστικό περιβάλλον με την ταχύτητα των διερχομένων αυτοκινήτων- έναν ισχυρό συμβολικό και εμβληματικό χαρακτήρα. Η βιομηχανία, ως χώρος εργασίας, παραμένει ένα διάτρητο κάστρο ακόμα τώρα, στην εποχή της μεταφορντικής παραγωγής
Ομάδα μελέτης:
Ζήσης Κοτιώνης, αρχιτέκτων
Νίκος Πλατσάς, αρχιτέκτων
Στατική μελέτη:
“Έδραση”, Ψαλίδας Α.Ε.
Ηλεκτρομηχανολογική μελέτη:
Γ. Κόλλιας, ηλεκτρολόγος μηχανικός
Επιφάνεια οικοπέδου: 4560m²
Συνολική επιφάνεια: 4.035m²
Χρόνος μελέτης: 2007
Χρόνος αποπεράτωσης: 2010
Φωτογραφική επιμέλεια: Βασίλης Μακρής
























